restaurant | 183 sq.m.
Dubai, UAE
2026
Blu is a pizza restaurant chain in the UAE with a unique approach to each location.
Instead of relying on a standardized set of finishes and design solutions—commonly used by restaurant chains to optimize processes and reduce costs - Blu has repeatedly turned to us to create bespoke projects that respond to their specific context
Instead of relying on a standardized set of finishes and design solutions—commonly used by restaurant chains to optimize processes and reduce costs - Blu has repeatedly turned to us to create bespoke projects that respond to their specific context
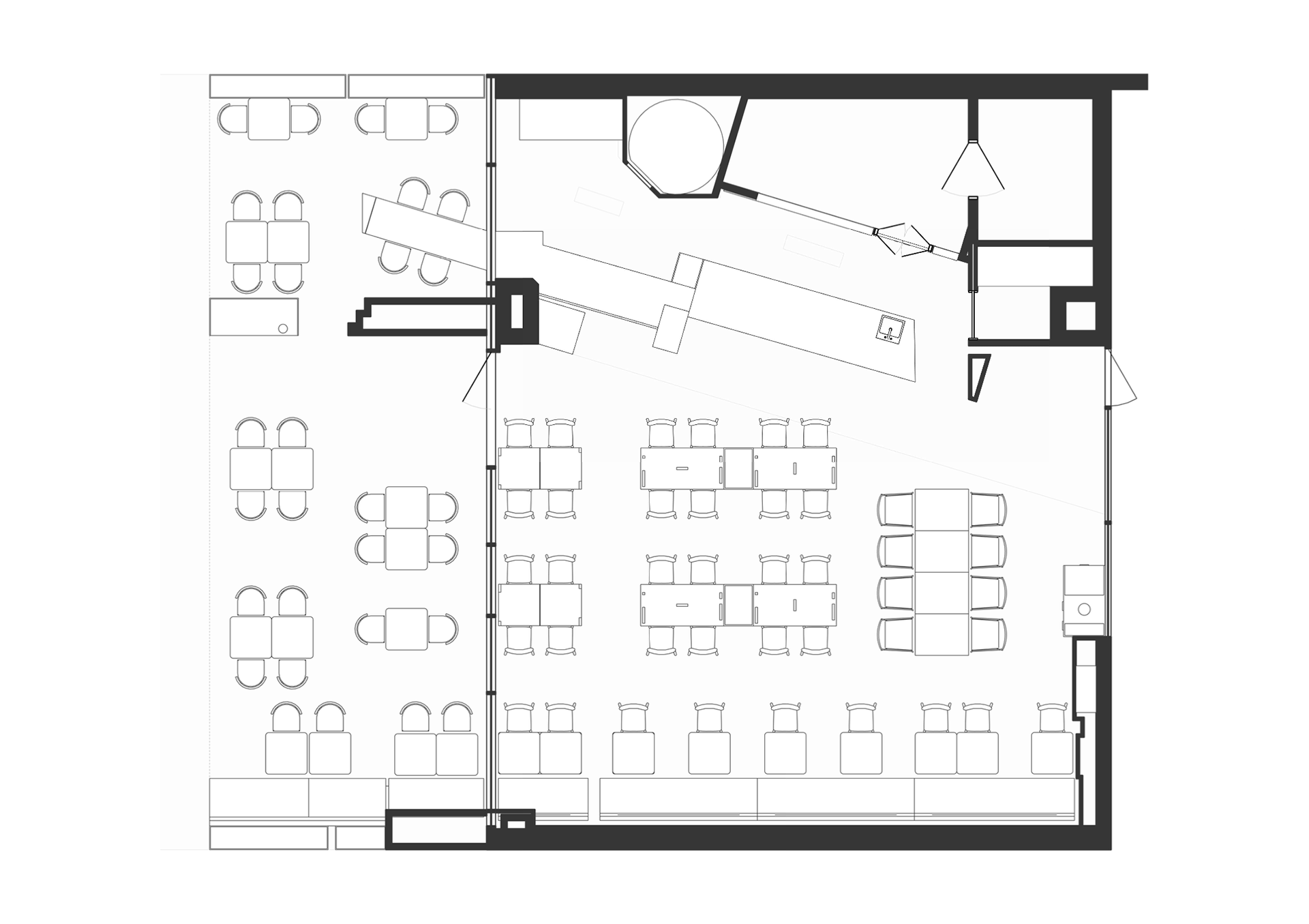
This branch of the chain is located in Nad Al Sheba Mall. We were given a relatively compact space with two entrances — one from inside the mall and one from the street. Despite this, we were able to accommodate a full semi-open kitchen with the brand’s signature pizza oven, which is designed to look unique in every restaurant of the chain.
The project’s key visual feature is a series of custom-made wall sconces crafted from large square metal profiles, creating a strong architectural rhythm along one of the walls. In a space with a relatively low ceiling, these vertical elements help visually elongate the interior and enhance the sense of height.
We also brought nature into the space by placing custom metal planters with full-scale trees between the tables. This approach additionally helped to define and separate seating areas in the central part of the dining space within a compact layout.
To support a friendly, home-like atmosphere — as if visiting a friend rather than a commercial venue — the interior avoids excessive decoration and complex bespoke details. Instead, almost all furniture was handcrafted by local artisans. The design team developed a deliberately utilitarian furniture language, taking into account local fabrication methods from the outset. The result is simple yet expressive furniture that meets ergonomic requirements while maintaining visual clarity.
Project team:
Ruben Movsisian, Catherine Tarasova, Artem Lebedev, Tatiana Kurochkina, Ivan Gorbunov
Ruben Movsisian, Catherine Tarasova, Artem Lebedev, Tatiana Kurochkina, Ivan Gorbunov
Thanks for watching!
Follow us on instagram.